Blanquefort (33290) Local professionnel de 46m² dans pôle médical au Centre Ville de Blanquefort
En plein coeur de Blanquefort,proche toutes commodités, dans un immeuble récent aux normes PMR avec ascenseur et parkings clientèle.
Centre médical regroupant 10 praticiens ( dentistes, kinésithérapeutes, podologue, médecin généraliste, ostéopathe, sages-femmes, orthoptiste, pédiatres, psychologue et infirmiers)
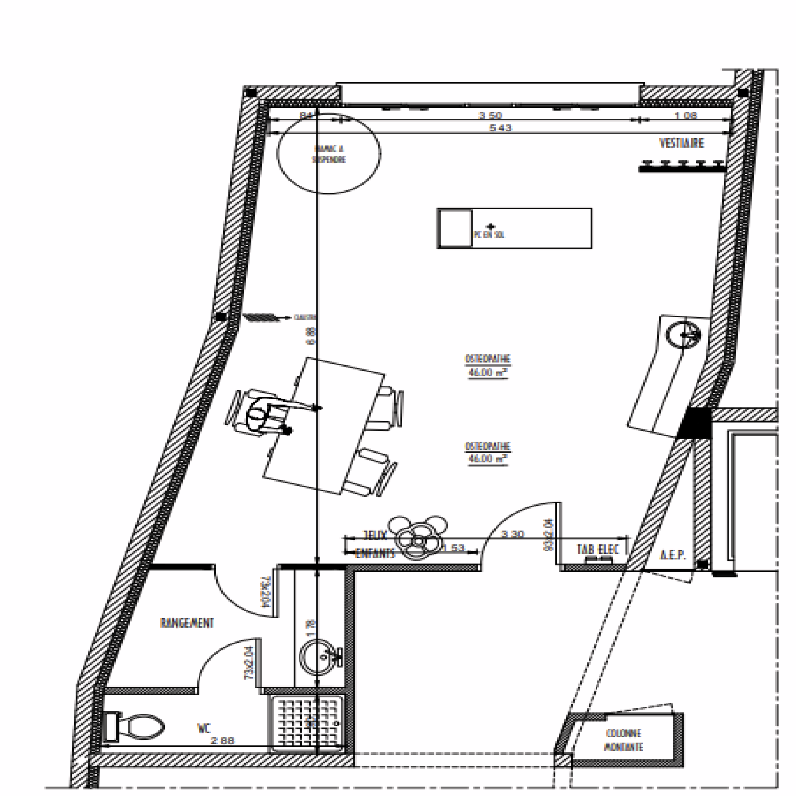
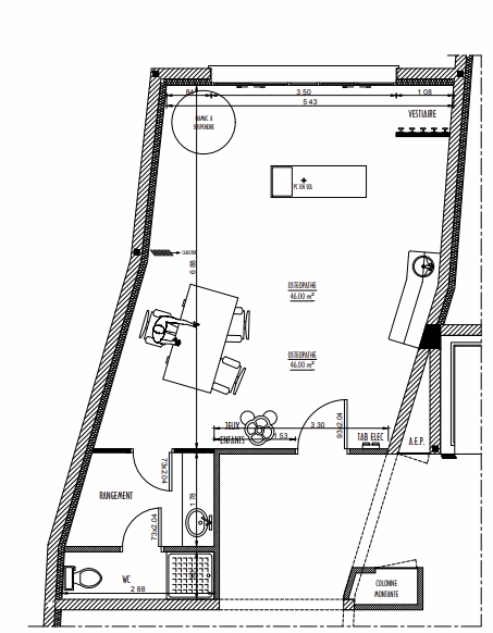
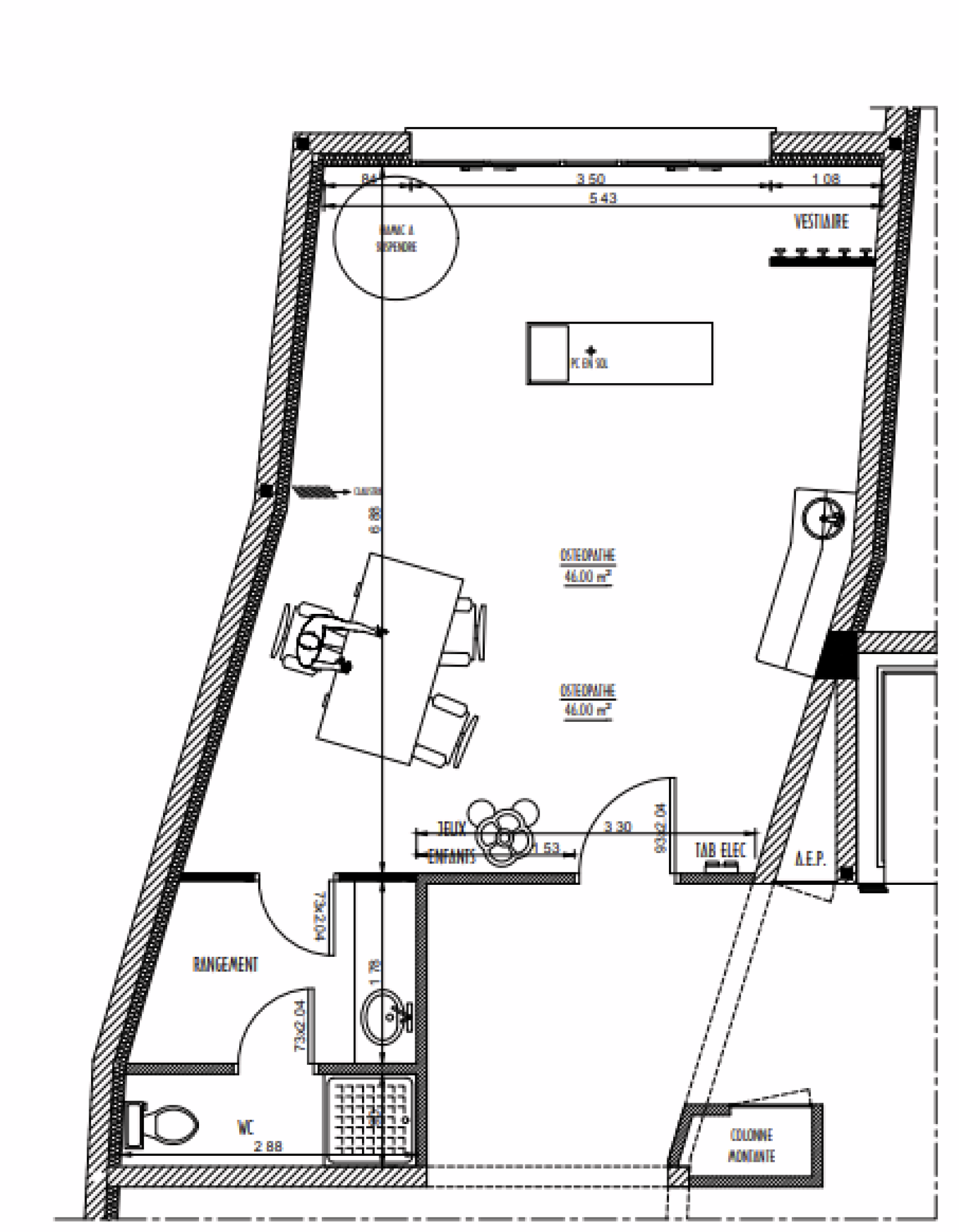
Un local d'environ 46 m² au 1er étage, composé d'un vaste bureau avec une salle de consultation, une salle d'eau et un WC.
Vous bénéficierez également d'une salle d'attente commune et d'un local détente réservé aux praticiens.
Belles prestations et emplacement privilégié. Cabinet libre fin septembre 2026
Loyer mensuel hors charges 810€ + charges mensuelles 255€ ( chauffage, eau chaude , taxe foncière, ascenseur, entretiens parties communes, climatisation réversible) soit un loyer mensuel charges comprises de 1060€ .
N'hésitez pas à nous consulter pour votre projet
Les caractéristiques Du bien
Les infos Financières
* HC : Hors charges
Ce site est protégé par reCAPTCHA, les Politiques de Confidentialité et les Conditions d'Utilisation de Google s'appliquent.
